Labels

今月のプロジェクト:カサMeztitla

今月のプロジェクト:カサMeztitla -
この絵を保存
[1945006!] [自然と接続するための1945006] Project of the Month: Casa Meztitla, © Yoshihiro Koitani
©義弘Koitani

の研究はしましたコンプライアンスの観点と場所の自然条件を改善するだけでなく、ユーザーと空間のグローバルな関係を確立するだけでなく、アーキテクチャに大きな価値、。

プロジェクトの月の月に、我々はユニークな風景の中に位置する住宅プロジェクト認識:メキシコでテポステコエリアを。このプロジェクトでは、アーキテクチャは、同時に独自の方法で設定を従事しながら、環境との調和建物を通して自然と接続しています。

カーサMeztitla / EDAA

理由は、そのコンテキストとのインテリジェントな統合を選択し、プロジェクトがを通じて環境とのつながりを強化しますコンバーチブル建築要素、地元の素材と自律水システムの使用。この家、若いメキシコのオフィスEDAAは、尊重し、その空間的な解釈と優れた建設を通じて自然を熟考することの重要性を強調しています。

1.ユニークな場所

Meztitlaカサはふもと、メキシコの熱帯地域の一つに位置しています理由は、その地理の、ビューを楽しむために、既存の自然な空間を傷つけないために、3テラスと2つの斜面に分割された、サイト上テポステコ丘。

この写真を送ってください!
General Plan
一般的な計画
自然と

2.統合造られ、自然がほとんど見えない間

部門。要素は、このような、リビングルーム、屋外プールでドアを折りたたみ景観との相互作用を増加させるよう、戦略的なポイントに挿入されています。

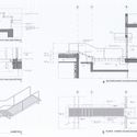
Acess Detail Plan and Section Plan Stairs Detail Pool Detail Wall Detail Floor Plan Roof Plan Detail 15

天然資源の3.

自然に建物の近接を活用することを目指し、2つの戦略は、美学と機能の面で実装されています。家の構造の地域材料の使用をし、水管理のための自律的な水システムの使用

以下の完全なプロジェクトの詳細を調べます。

カーサMeztitla / EDAA

Description
: 今月のプロジェクト:カサMeztitla
Rating
: 4.5
Reviewer
: Unknown
ItemReviewed
: 今月のプロジェクト:カサMeztitla
0 komentar
Categories Articles

0 komentar:

Posting Komentar